Home     Über uns  Standort  Kontakt
 










       
blind 







EFH Neubau Knecht in Bremgarten


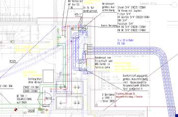
Technik
- Komforlüftung
- Oelheizung
- Warmwasser über Sonnenkollektoren beheizt
- Sanitäre Installationen


blind 
 
briefkasten@caltronic.ch  
2002 caltronic.ch